Nitra24.sk

Galéria k článku VIZUALIZÁCIA víťazného návrhu: Investor chce v Nitre postaviť 500 bytov

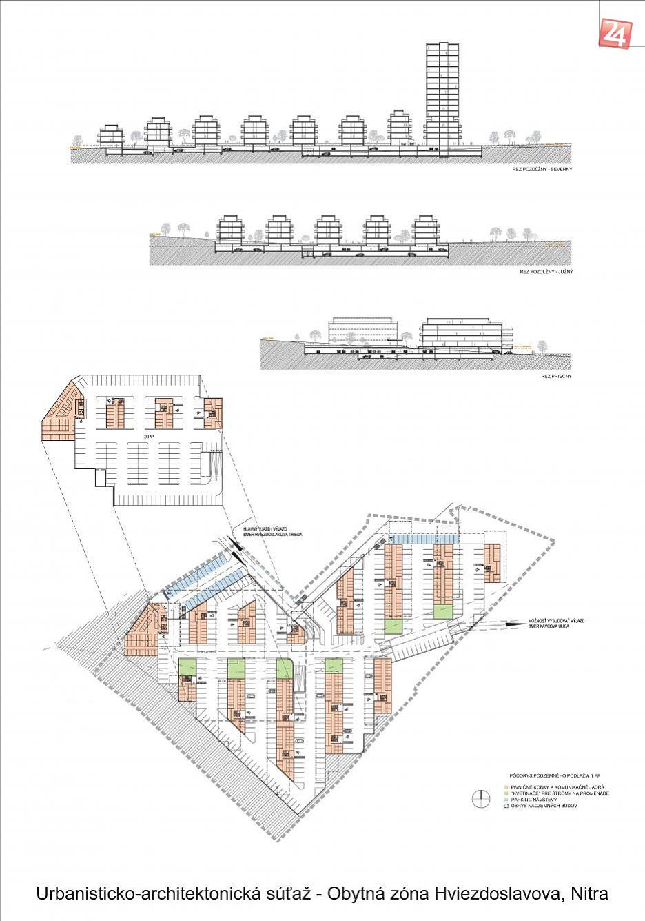
3. cena / 2.000 € - Návrh č. 5
Foto: autor projektu Plán B architekti Zdroj: archinfo.sk
15 / 18