Nitra24.sk

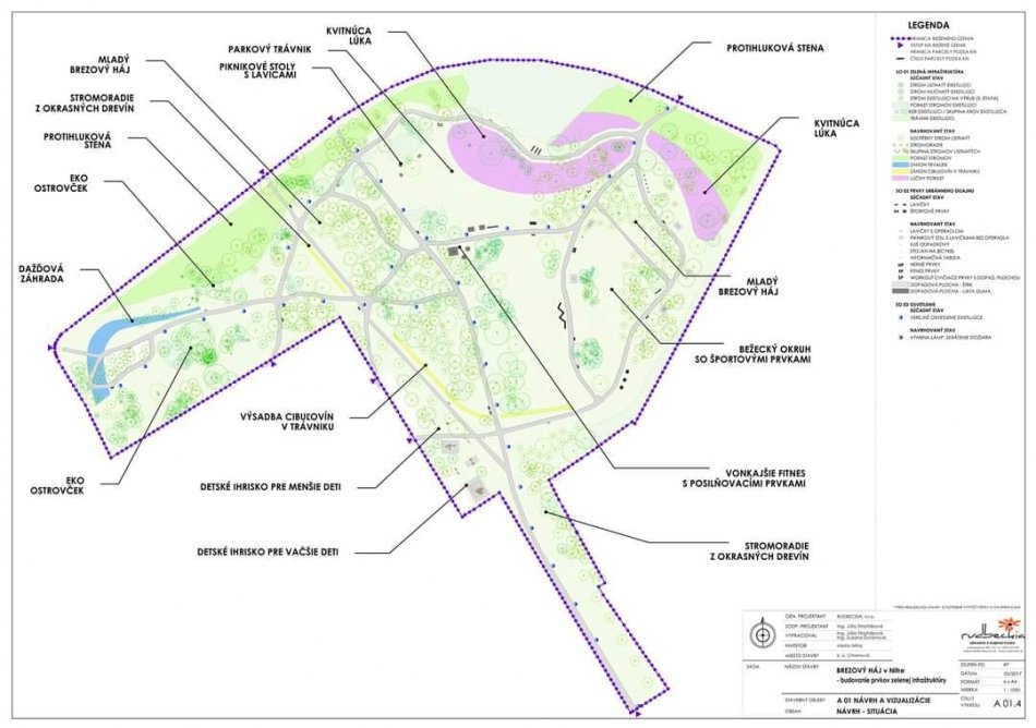
Galéria k článku V Brezovom háji pokračuje výsadba: Vyschnuté stromy chce mesto reklamovať


Zdroj: Marek Hattas - primátor Nitry
2 / 4