Nitra24.sk

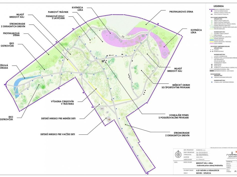
Galéria OBRAZOM: Revitalizácia Brezového hája


Zdroj: Mesto Nitra
1 / 4