Nitra24.sk

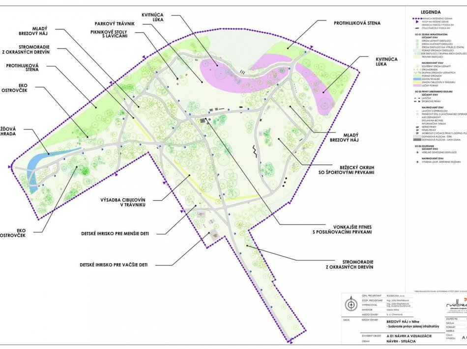
Galéria k článku Začala sa revitalizácia Brezového hája: Pribudnú nové stromy aj piknikové stoly


Zdroj: Mesto Nitra
1 / 4